Разъединители внутренней установки серии РРИ на напряжение 10 КВ. Приводы серии ПР-4

Назначение
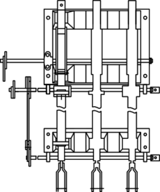
Разъединители высоковольтные трехполюсные серии РРИ на напряжение 10 кВ предназначены для включения и отключения обесточенных участков электрической цепи, а также заземления отключенных участков при помощи заземлителей (при их наличии), составляющих единое целое с разъединителями. Используются в камерах стационарных одностороннего обслуживания (КСО) серии 300, комплектных трансформаторных подстанциях (КТП) и комплектных распределительных устройствах (КРУ) на класс напряжения 6... 10 кВ трехфазного переменного тока частотой 50 Гц для систем с изолированной нейтралью.
Привод ПР - 4УХЛЗ предназначен для ручного оперирования разъединителями внутренней установки.
Условия эксплуатации
Разъединители и приводы предназначены для эксплуатации в климатических условиях УХЛ, категория размещения 3 по ГОСТ 15150.
В части воздействия внешних механических факторов соответствуют группе Ml ГОСТ 17516.1 Эксплуатация разъединителей и приводов должна производиться в соответствии с ГОСТ 689 и "Руководством по эксплуатации" (ИВЕЖ.674212.036 РЭ и ИВЕЖ.303334.014 РЭ).
|
Наименование |
РРИ-10/400 |
|
Номинальное напряжение, кВ |
10 |
|
Наибольшее рабочее напряжение, кВ |
12 |
|
Номинальный ток, А |
400 |
|
Номинальный кратковременный выдерживаемый ток (ток термической стойкости), кА |
20 |
|
Наибольший пик номинального кратковременного выдерживаемого тока (ток электродинамической стойкости), кА |
50 |
|
Время протекания предельного тока короткого замыкания, с: |
|
|
Номинальный ток предохранителя, А |
20; 25; 31,5; 40; 50; 63; 80; 100 |
Ссылка на товары: http://www.kabelivsem.ru/cat.php?lang=ru&id=641

